行業資訊
中鐵城際分享在進行燃氣設計時的一些干貨,值得收藏
住宅燃氣設計和商業燃氣設計現階段一般由具有氣體動力設計資質的單位進行設計,也有一些燃氣設計院進行設計,燃氣設計對一般在建筑設計的小伙伴來講比較陌生。再加上燃氣總是在使用過程中發生事故,導致設計師望而卻步,小編有機會涉及到燃氣設計領域,下面對一些關鍵點進行匯總以饗讀者,也請大家多多批評指導。
1.按天然氣設計,調壓計量設備則按天然氣用型選用;
2.管道設計壓力:
中壓系統0.3MPa,地下PE燃氣管道低壓系統:7KPa。地上燃氣管道低壓系統:采用一次調壓時5KPa,采用二次調壓時,一次調壓后<10KPa,二次調壓后5KPa。
3.管道運行壓力:
商業調壓器前為0.2MPa,調壓器后為3KPa,商戶根據自身燃氣器具使用情況設置廚房調壓裝置;
住宅調壓器前為0.2 MPa,對于上環下行一次調壓器后7~8KPa,廚房可采用低低壓調壓器后2.2~2.5KPa(家用燃氣用具額定壓力為2 KPa);對于下環上行住戶住戶調壓器后2.6KPa,不用設置廚房低低壓調壓器。
注:戶內允許阻力0.2 KPa,附加壓頭豎向5Pa/m


4.管道系統設計合理使用年限為30年;
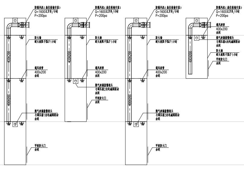
燃氣管井不可忽略的通風:
1. 通風不良的管井頂部設防爆風機,底部設補風口(通室外),在管井頂部及底部設燃氣泄漏報警探頭;


2. 管井內樓層高度處作通風安全隔柵或多孔水泥板(可站人),檢修門采用甲級防火門(600x1800);墻體采用防火墻,燃氣管井為一個獨立的防火分區,燃氣管井不小于1平方米,可進人維修。
3. 管井內燃氣立管靠內邊安裝,焊接口在管井門高度內,并便于安裝及檢修;
4. 管井內燃氣管均為無縫鋼管,焊接連接,根據需要設燃氣預留閥(法蘭球閥或螺紋球閥),底部設排污閥。5.管井內設燃氣專用放散管,根據需要設預留閥(螺紋球閥),底部設排污閥,頂部應引至室外安全處,出口作防雨彎頭。
更多相關信息 還可關注中鐵城際公眾號矩陣 掃一掃下方二維碼即可關注





